RoPa Bouw & advies
Projecten - Afgerond
Uitbreiding 1e verdieping Nijmegen
Status: “Gerealiseerd”Locatie: “Nijmegen“ Voor een opdrachtgever in nijmegen. Het ontwerp,...
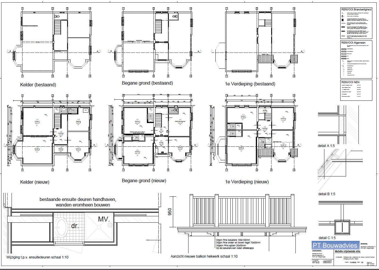
Mutatie vrijstaande villa Wageningen
Status: “Gerealiseerd” Locatie: “Wageningen” Voor een opdrachtgever in Wageningen. Het...